全國定製谘詢熱線
0769-23103048
羞羞漫画WWW成人漫画樱缸設備行業優選品牌!

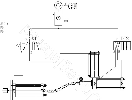
羞羞答答在线观看預壓式羞羞漫画WWW成人漫画樱缸氣路連接說明:
一、符號說明:
A:增壓缸預壓回位氣口
B:增壓缸預壓下降氣口
C:增壓缸增壓回位氣口
D:增壓缸增壓下降氣口
DT1:增壓缸控製預壓電磁閥
DT2:增壓缸控製增壓電磁閥

二、動作順序:
1、A口 C口通氣,此缸處於回升狀態。
2、b口進氣,a口排氣,壓縮空氣作用在儲油桶內的液壓油表麵,液壓油驅動預壓腔活塞作位移,並使預壓腔活塞活塞杆軸段的模具抵觸到工件。
3、b口斷氣,d口進氣,壓縮空氣作用使增壓活塞作位移去擠壓預壓腔的液壓油,使液壓油膨脹,從而使預壓活塞杆軸端的模具保持高壓出力去擠壓成型工件。
4、c口進氣,d口排氣,增壓活塞回升,增壓活塞到位後,a進氣,d排氣,預壓活塞回位,此時液壓油回到儲油桶內,一個動作循環完成。
